Rif: IMMO-125435529
BAGNOLO MELLA
BRESCIA
**Appartamento Trilocale su due piani - Zona semicentrale**
BAGNOLO MELLA: Scopri questo splendido appartamento TRILOCALE su due livelli, situato in una zona semicentrale comoda a tutti i servizi. A soli 50 metri dal parco pubblico Parcobaleno, offre un perfetto equilibrio tra tranquillità e accessibilità. Con una superficie commerciale di 130 m² e 83 m² calpestabili, questo immobile è ideale per chi cerca spazio e comfort.
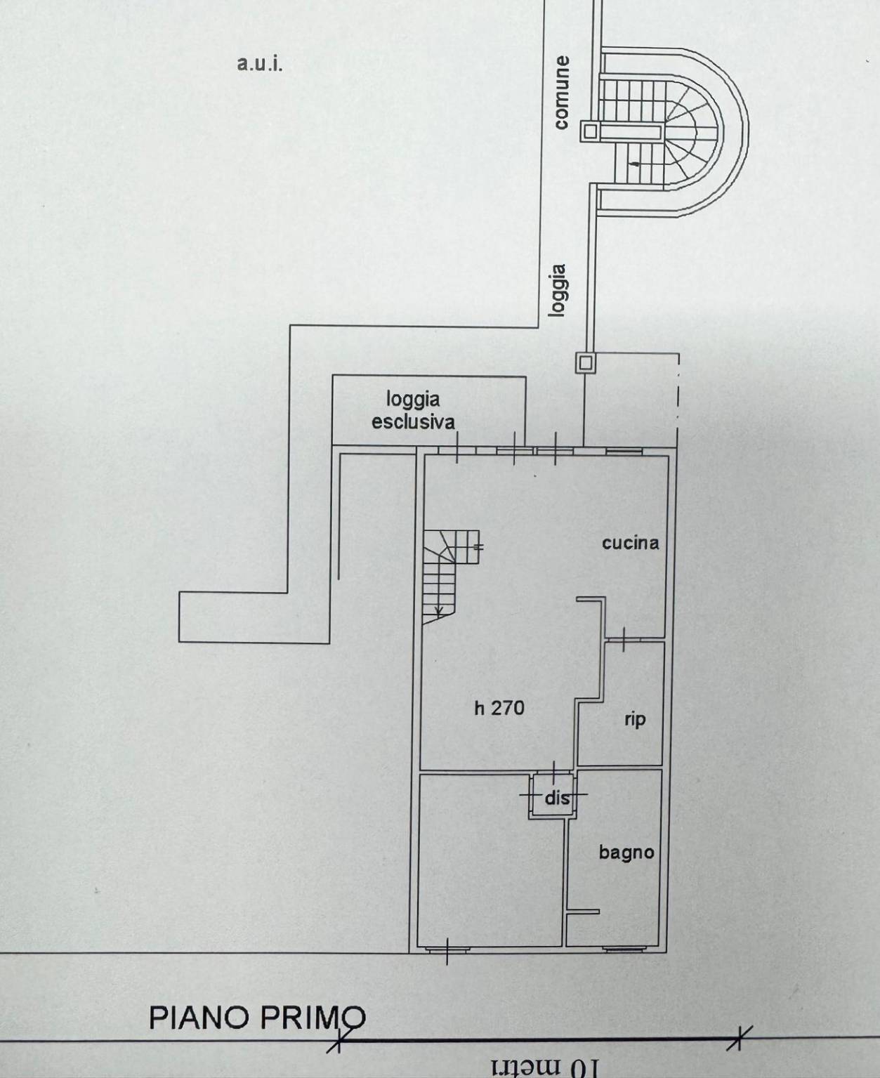
Al primo piano, troviamo un accogliente soggiorno con angolo cucina, un ripostiglio/lavanderia, un disimpegno, una camera da letto e un bagno. Salendo al secondo piano troviamo la seconda camera e il bagno padronale di alta qualità. Gli armadi a muro offrono soluzioni pratiche per l'organizzazione degli spazi.
Le finiture di buon livello e garantiscono un ambiente confortevole. Inoltre, l'appartamento è dotato di un balcone. La proprietà include anche un'autorimessa nell'interrato e un'ampia cantina, rendendo questo appartamento ancora più funzionale.
Costruito nel 1998 l'immobile è in buono stato e pronto per essere abitato. Con riscaldamento autonomo e predisposizione climatizzatore e camino/stufa pellet, offre un consumo di energia contenuto. Non perdere l'occasione di visitare questa meravigliosa opportunità! Contattaci per maggiori informazioni e per organizzare una visita.
SERVIZIO GRATUITO FATTIBILITA' MUTUO: scopri se hai la possibilità di ottenere il mutuo - chiama subito senza impegno e fissa una consulenza gratuita di fattibilità.
Agenzia immobiliare Mauro Bonini è anche su Facebook e Instagram! Clicca "mi piace" e segui tutte le nostre proposte!
MAURO BONINI con esperienza ventennale come agente immobiliare ha il proprio ufficio e si dedica con grande passione alla consulenza al cliente dalla fase iniziale sino a quella finale mettendo a disposizione professionalità, conoscenza ed esperienza. Ritiene importante l'ascolto delle necessità mettendo al centro dell'attenzione il cliente. Questa fase di approfondimento all'inizio della conoscenza potrà portare a ridurre i tempi della ricerca ed a ottimizzare tutte le fasi relative all'acquisto e alla vendita conciliando le esigenze delle parti coinvolte. Servizi offerti:
- Valutazioni immobili residenziali, commerciali ed artigianali.
- Compravendite - Locazioni
- Permute
- Gestioni immobiliari
- Consulenza mutui per l'acquisto del tuo immobile
- Verifica regolarità documentale
- Ispezioni catastali e ipotecarie
- Analisi di fattibilità per nuove iniziative immobiliari e ristrutturazioni.
BAGNOLO MELLA: Scopri questo splendido appartamento TRILOCALE su due livelli, situato in una zona semicentrale comoda a tutti i servizi. A soli 50 metri dal parco pubblico Parcobaleno, offre un perfetto equilibrio tra tranquillità e accessibilità. Con una superficie commerciale di 130 m² e 83 m² calpestabili, questo immobile è ideale per chi cerca spazio e comfort.
Al primo piano, troviamo un accogliente soggiorno con angolo cucina, un ripostiglio/lavanderia, un disimpegno, una camera da letto e un bagno. Salendo al secondo piano troviamo la seconda camera e il bagno padronale di alta qualità. Gli armadi a muro offrono soluzioni pratiche per l'organizzazione degli spazi.
Le finiture di buon livello e garantiscono un ambiente confortevole. Inoltre, l'appartamento è dotato di un balcone. La proprietà include anche un'autorimessa nell'interrato e un'ampia cantina, rendendo questo appartamento ancora più funzionale.
Costruito nel 1998 l'immobile è in buono stato e pronto per essere abitato. Con riscaldamento autonomo e predisposizione climatizzatore e camino/stufa pellet, offre un consumo di energia contenuto. Non perdere l'occasione di visitare questa meravigliosa opportunità! Contattaci per maggiori informazioni e per organizzare una visita.
SERVIZIO GRATUITO FATTIBILITA' MUTUO: scopri se hai la possibilità di ottenere il mutuo - chiama subito senza impegno e fissa una consulenza gratuita di fattibilità.
Agenzia immobiliare Mauro Bonini è anche su Facebook e Instagram! Clicca "mi piace" e segui tutte le nostre proposte!
MAURO BONINI con esperienza ventennale come agente immobiliare ha il proprio ufficio e si dedica con grande passione alla consulenza al cliente dalla fase iniziale sino a quella finale mettendo a disposizione professionalità, conoscenza ed esperienza. Ritiene importante l'ascolto delle necessità mettendo al centro dell'attenzione il cliente. Questa fase di approfondimento all'inizio della conoscenza potrà portare a ridurre i tempi della ricerca ed a ottimizzare tutte le fasi relative all'acquisto e alla vendita conciliando le esigenze delle parti coinvolte. Servizi offerti:
- Valutazioni immobili residenziali, commerciali ed artigianali.
- Compravendite - Locazioni
- Permute
- Gestioni immobiliari
- Consulenza mutui per l'acquisto del tuo immobile
- Verifica regolarità documentale
- Ispezioni catastali e ipotecarie
- Analisi di fattibilità per nuove iniziative immobiliari e ristrutturazioni.
Consistenze
| Descrizione | Superficie | Sup. comm. |
|---|---|---|
| Principali | ||
| Immobile - 1° piano | 83 Mq | 83 Mqc |
| Immobile - 2° piano | 32 Mq | 32 Mqc |
| Box/Garage - piano interrato | 25 Mq | 12 Mqc |
| Cantina - piano interrato | 10 Mq | 2 Mqc |
| Totale | 129 Mqc | |








